Leave a Message

Thank you for your message. We will be in touch with you shortly.

Explore Our Properties

Property Description

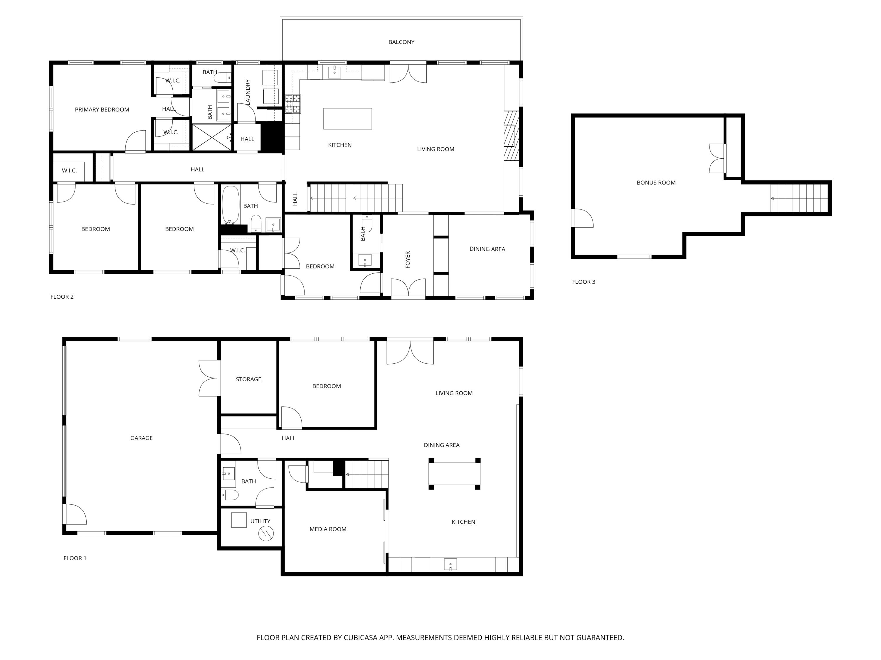
Experience refined Maine living at its best on Tide Water Drive, where timeless Spanish inspired architecture meets the serenity of the Saco River. This exceptional new construction residence includes 140' of shared river frontage exclusively for residents, combining privacy, style, and proximity to the coast.

Inside, every detail is designed for sophistication and comfort. The kitchen is a showpiece with an expansive island, quartzite countertops, hidden pantry with wine storage, Cafe appliances, under/inner cabinet lighting, and wood beam accents.

The living room features a propane fireplace, arched window seats, and glass doors opening to the back deck. The dining room's vaulted ceilings, and natural light create a space perfect for entertaining. The primary suite includes two walk-in closets and a spa like ensuite with a tiled shower, and double sink vanity. Two guest bedrooms, a flexible third bedroom or office, and an upper-level bonus room create abundant space for living, working, and entertaining.

The finished lower level includes a wet bar with granite countertops, lounge, theatre room with built-in speakers and projector, and a bright fitness studio with a water station, full wall mirror and built-in bluetooth speakers. Additional highlights include a mudroom with custom built-ins, laundry with built-ins, and a two car garage with EV charging and workshop room. Central air and multiple heat pumps ensure comfort throughout.

The manicured grounds feature granite steps, an expansive front patio and Wi-Fi controlled irrigation. The property is equipped with exterior hardwired security cameras, and a heat pump hot water system.

Just minutes from Fortunes Rocks Beach, Biddeford Pool, Rachel Carson Wildlife Refuge, and downtown Biddeford's dining and entertainment scene, this Tide Water Drive retreat perfectly blends elegance, comfort, and the best of Maine's riverside lifestyle

Overview

Property Status
Sold
Lot Size
0.46 Acres
MLS ID
1641953
Property Type
Residential
Year Built
2025

Features & Amenities

Total Area
3,653 Sq.Ft.
Neighborhood
Biddeford
Architecture Styles
Ranch
Garage Spaces
2.0
Water Source
Public
Utilities
Utilities On
Roof
Shingle
Lot Features
Well Landscaped, Open, Near Public Beach, Near Town, Neighborhood, Subdivided, Irrigation System
Parking
Auto Door Opener, 1 - 4 Spaces, 5 - 10 Spaces, Paved, On Site, Inside Entrance, Off Street, Electric Vehicle Charging Station(s)
Heat Type
Zoned, Heat Pump, Forced Air
Air Conditioning
Heat Pump, Central Air
Laundry Room
Built-Ins, Laundry - 1st Floor, Main Level, Washer Hookup
Appliances
Washer, Refrigerator, Microwave, Gas Range, Dryer, Dishwasher
Other Interior Features
Walk-in Closets, 1st Floor Bedroom, 1st Floor Primary Bedroom w/Bath, Bathtub, Other, Pantry, Shower, Storage, Primary Bedroom w/Bath
Sewer
Septic Tank, Private Sewer, Septic Design Available
Substructure
Concrete Perimeter
Sales Price
$1,065,000
Real Estate Tax
$5,020/yr
HOA
$75/mo
Zoning
SR1

Downloads

6 Tide Water Drive

Schedule a Tour

We would love to help you see this beautiful home! As a full-service brokerage, we can help you tour. Please submit an offer, and answer questions about the buying process.

Thank you

for your interest in 6 Tide Water Drive, Biddeford, ME 04005

6 Tide Water Drive
Navigate
Biddeford

Explore Biddeford

read more
6 Tide Water Drive
explore in 3d

I'm Interested In

6 Tide Water Drive

or
  • CallBailey Pate

    License #BR927429

    207-292-1030
  • Follow Us On Instagram